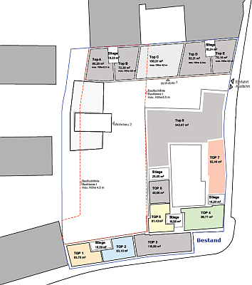
Wien, ehemaliges Kloster, Fuhrmannhaus
Gebäude

Nutzungsmöglichkeit

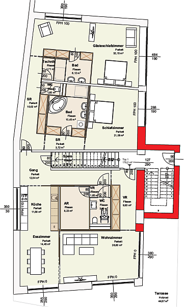
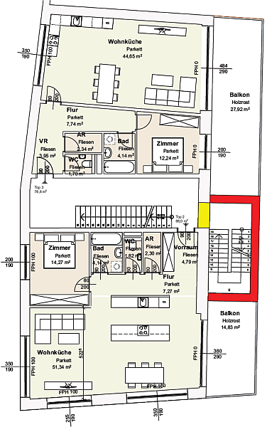
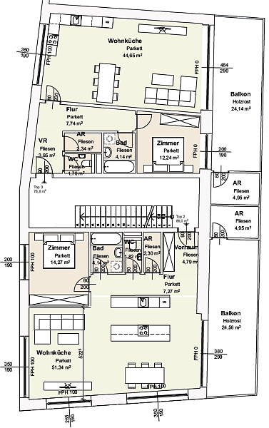
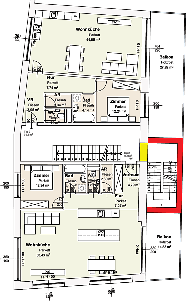
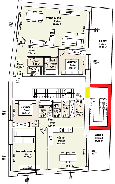
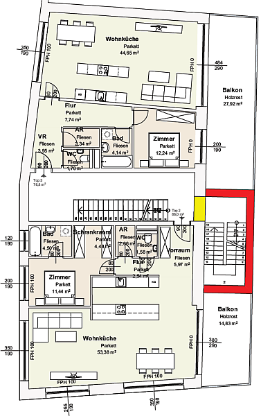
Grundrisse
Erdgeschoss


Obergeschoss, Variante 1


Obergeschoss, Variante 2


Obergeschoss, Variante 3


Obergeschoss, Variante 4


Obergeschoss, Variante 5


Obergeschoss, Variante 6


Dachgeschoss
mit Zubau

mit Innenausbau
